
Fastlagsvägen
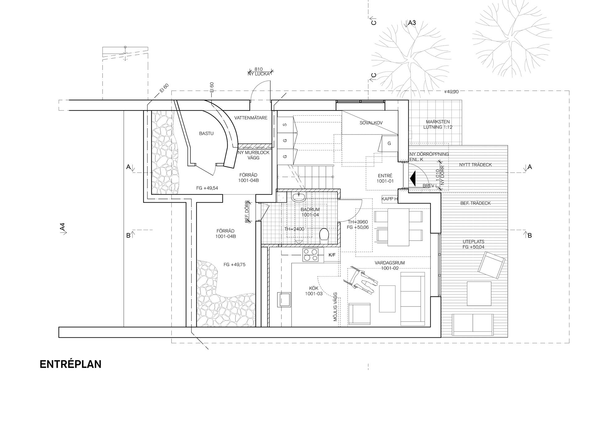
Renovation and transformation of a ground floor apartment
Location: Hägersten, Stockholm
Area: 67 m2
Client: Bostadsrättsförmedling
Built: 2025
Add descriptive text here: one paragraph about the project…












Renovation and transformation of a ground floor apartment
Location: Hägersten, Stockholm
Area: 67 m2
Client: Bostadsrättsförmedling
Built: 2025
Add descriptive text here: one paragraph about the project…










